For sale
Register
Information
Realisations
Our values
en
nl
fr
Facebook
Linkedin
Contact
en
nl
fr
Facebook
Linkedin
Contact
For sale
Home
For sale
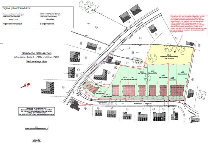
2024-WS-034 - Verkaveling Rodestraat - Lot 3
Home
Rodestraat
1570 Galmaarden
Contact us
Certificates
Ground certificate:
yes
Connections
Sewage:
yes
Electricity:
yes
Cable television:
yes
Gas:
yes
Water:
yes
General Figures
Number of floors obligation:
1
Lateral space of area to be built 3:
3 m
Max nr of fronts:
3
Height cornice:
6
General Information
Ground slope:
flat
Ground details
Type of environment:
near railway station
Type of environment 2:
residential area
Flooding type:
not located in flood area
P-score:
C
Legal Fields
Parcelling permission:
yes
Purpose of the building:
private - single family + office
Urbanistic use:
rural residential area
Type of summons:
no legal correction or administrative measure imposed
main features
Depth of ground depth & width:
46.07 m
Area to be built (surf):
275.55 m²
Width of area to be built:
8.35 m
Depth of area to be built:
15 m
Width:
11.35
Next To
Shops:
1800 m
Schools:
850 m
Public transports:
110 m
City:
1600 m
Sport center:
800 m
Highway:
7800 m
Railway station:
500 m
Downloads
Document 1
Document 2
Bodemattest
Verkavelingsvergunning
Wendy Susilo
Tel:
0476 61 00 00
E-mail:
[email protected]
Contact us
Please enable JavaScript in your browser to complete this form.
First name
*
Last name
*
Phone
*
E-mail
*
Message
*
We respect your
privacy
. Your data will always be treated confidentially.
Website
Submit